9
PRINCETON THEATRE
5
COLISEUM

2
1312 MARLOWE
5
ELEUTHERIAN COLLEGE

47
ISU DREISER HALL

3
TEMPLE ISRAEL

11
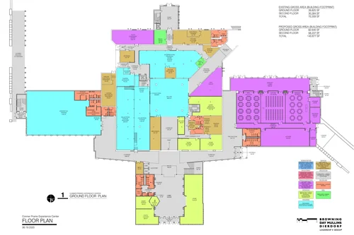
CONNER PRAIRIE

12
WARSAW STREET
5
CONNER HOUSE
7
BOY SCOUTS

2
INDIANA THEATRE

4
CROWN HILL HPMP

3
1316 MARLOWE

3
UNION STATION

8
SPEED BARNS
5
SPEEDWAY

6
FRENCH LICK

7
1634 NEW JERSEY

9
BRAZIL 1ST UMC

14
PURDUE BAILEY HALL

4
EUGENE V. DEBS

10
1435 MARLOWE

2
1308 MARLOWE

16
SWOPE RENOVATION

9
ROCKVILLE 1ST UMC

8
1962 CORNELL

4
1ST NATIONAL BANK

13
KOKOMO LOFTS

8
TCM PALEO LAB

7
TCM MISSION JURASSIC

9
CROWN HILL

5
626 DORMAN

6
NICKEL PLATE ARTS

17
CP MASTERPLAN

8
ROUNDHOUSE

152
PHOTOGRAPHY